
11种自行车棚轻钢结构设计施工图

11种自行车棚轻钢结构设计施工图

11种自行车棚轻钢结构设计施工图
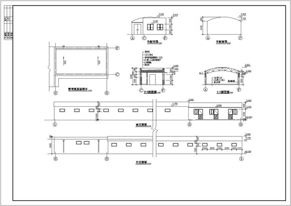
11种自行车棚轻钢结构设计施工图,包括设计说明、平面布置图、基础平面图、檩条布置图、屋面布置图……等共11个车棚图纸。

11种自行车棚轻钢结构设计施工图

11种自行车棚轻钢结构设计施工图

11种自行车棚轻钢结构设计施工图
11种自行车棚轻钢结构设计施工图,包括设计说明、平面布置图、基础平面图、檩条布置图、屋面布置图……等共11个车棚图纸。
声明:资源收集自网络或用户分享,仅供学习参考,如侵犯您的权益,请联系我们处理。
不能下载?报告错误