
标准图集03SG715-1蒸压轻质加气混凝土板(NALC)构造图集

标准图集03SG715-1蒸压轻质加气混凝土板(NALC)构造图集

标准图集03SG715-1蒸压轻质加气混凝土板(NALC)构造图集
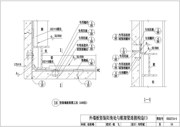
加气混凝土板构造详图包括:目录,说明,NALC板与钢结构连接构造,含外墙板竖装、横装,隔墙,屋面,阳台雨棚等构造详图。NALC板与钢筋混凝土结构连接构造,含外墙板竖装、横装,隔墙,屋面,等构造详图,

标准图集03SG715-1蒸压轻质加气混凝土板(NALC)构造图集

标准图集03SG715-1蒸压轻质加气混凝土板(NALC)构造图集

标准图集03SG715-1蒸压轻质加气混凝土板(NALC)构造图集
加气混凝土板构造详图包括:目录,说明,NALC板与钢结构连接构造,含外墙板竖装、横装,隔墙,屋面,阳台雨棚等构造详图。NALC板与钢筋混凝土结构连接构造,含外墙板竖装、横装,隔墙,屋面,等构造详图,
声明:资源收集自网络或用户分享,仅供学习参考,如侵犯您的权益,请联系我们处理。
不能下载?报告错误