规范网
更新
当前位置:
规范网
资料
内容详情
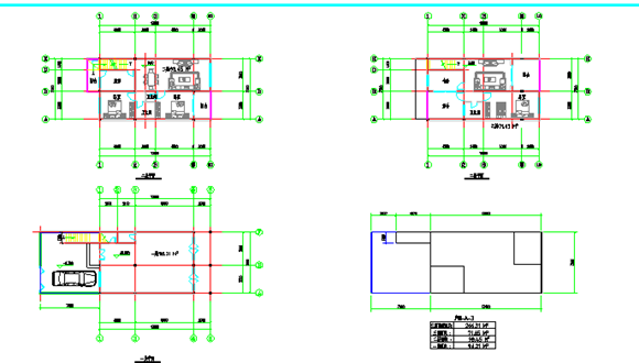
沿街商住一体门面房设计图
沿街商住一体门面房设计图
沿街商住一体门面房设计图
沿街商住一体门面房设计图
该图适用于城镇集贸市场或专业市场
加入收藏
下载文件
声明:资源收集自网络或用户分享,仅供学习参考,如侵犯您的权益,请联系我们处理。
不能下载?报告错误
下页:
工厂景观设计效果图
相关推荐
住宅小区安全防范系统运维服务规范 (DB34/T 4977-2025)
住宅小区微型消防站建设管理规范 (DB3207/T 2039-2025)
住宅小区保安服务规范 (DB3402/T 76-2024)
住宅小区电动汽车充电设施建设管理规范 (DB4403/T 525-2024)
津17D20图集 住宅小区安全防范系统
沿街商住一体门面房设计图
下载文件
免费下载
标签
数据标准
教育随笔
机关单位工作计划
生产总结
垫片标准
幼儿园工作计划
管道标准
钢管标准
旅游规范
铆钉标准
螺母标准
疏水阀标准
edi标准
12j003
10j301
黑色冶金规范
个人总结
检验标准
退刀槽标准
热电偶标准
邮政规范
07sd101-8
银行工作计划
食用盐标准
止回阀标准
客服总结
河北省标准
云南省标准