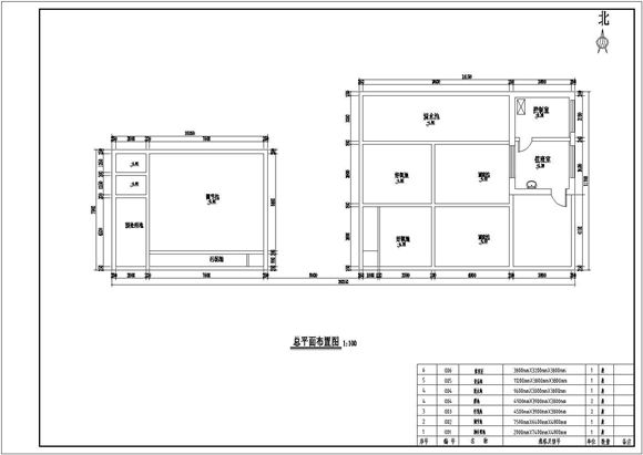
某公司自主设计MBR膜工艺流程安装说明图 某公司自主设计MBR膜工艺流程安装说明图 某公司自主设计MBR膜工艺流程安装说明图 本图纸是属于600吨的MBR。图纸包含:工艺流程图、平面设计图、曝气曝气以及溢流管通气管、管道总平面图、水利高程图、总平面布置图、设备平面布置图、管道总平面图、提升泵出水、污泥和絮凝加药及出水管平面图
某公司自主设计MBR膜工艺流程安装说明图
某公司自主设计MBR膜工艺流程安装说明图 某公司自主设计MBR膜工艺流程安装说明图 某公司自主设计MBR膜工艺流程安装说明图 本图纸是属于600吨的MBR。图纸包含:工艺流程图、平面设计图、曝气曝气以及溢流管通气管、管道总平面图、水利高程图、总平面布置图、设备平面布置图、管道总平面图、提升泵出水、污泥和絮凝加药及出水管平面图
某公司自主设计MBR膜工艺流程安装说明图