
常用各种类型的铝单板幕墙安装节点图

常用各种类型的铝单板幕墙安装节点图

常用各种类型的铝单板幕墙安装节点图
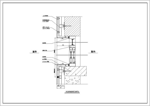
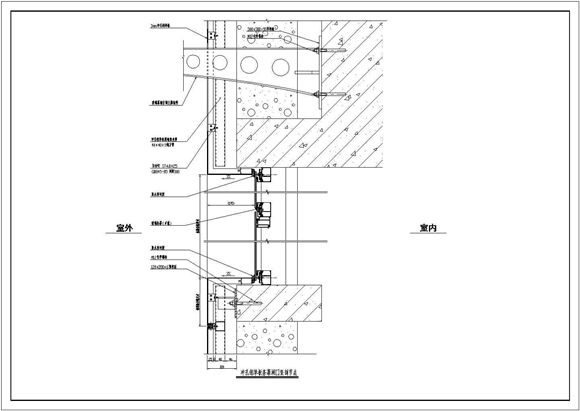
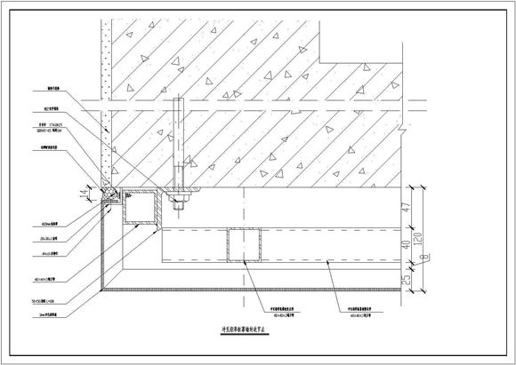
该图纸为常用各种类型的铝单板幕墙安装节点图,图纸内容主要包含:铝隔栅安装竖剖节点,冲孔铝单板幕墙窗洞口横剖节点,玻璃幕与冲孔铝单板连接竖剖节点,冲孔铝单板幕墙横剖阳角节点图等。

常用各种类型的铝单板幕墙安装节点图

常用各种类型的铝单板幕墙安装节点图

常用各种类型的铝单板幕墙安装节点图
该图纸为常用各种类型的铝单板幕墙安装节点图,图纸内容主要包含:铝隔栅安装竖剖节点,冲孔铝单板幕墙窗洞口横剖节点,玻璃幕与冲孔铝单板连接竖剖节点,冲孔铝单板幕墙横剖阳角节点图等。
声明:资源收集自网络或用户分享,仅供学习参考,如侵犯您的权益,请联系我们处理。
不能下载?报告错误