当前位置:首页  资料内容详情

某地珠宝专柜展厅建筑平面设计图纸

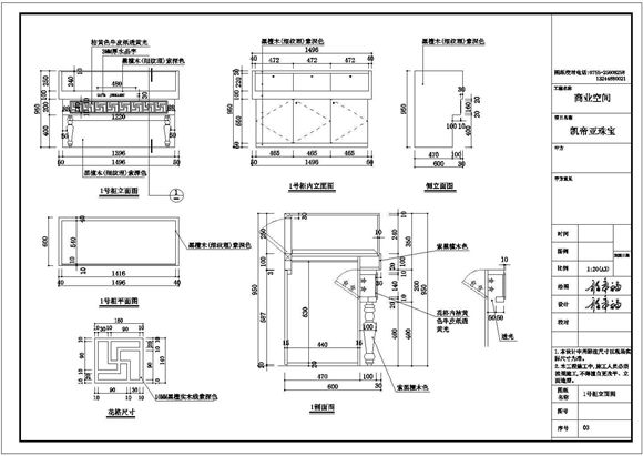
某地珠宝专柜展厅建筑平面设计图纸 某地珠宝专柜展厅建筑平面设计图纸 某地珠宝专柜展厅建筑平面设计图纸 本图纸是,位于深圳田内的一商场区内,图纸包含平面效果图,电路图、剖面图、立面图等,可供参考。

某地珠宝专柜展厅建筑平面设计图纸

声明:本站为网络服务提供者及网络索引服务平台资源索引自网络/用户分享,如有版权问题,请联系站方删除。

不能下载?报告错误