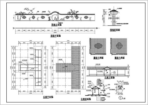
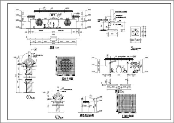
某中式长廊、景墙、围墙全套施工图 某中式长廊、景墙、围墙全套施工图 某中式长廊/景墙/围墙全套施工图,含两个中式景墙、一个中式围墙、一个中式长廊(木结构),景墙和围墙图纸含平面、立面、剖面及大样图,长廊图纸含平面图、顶面图、立面图、剖面图、坐凳详图以及详图等。
某中式长廊、景墙、围墙全套施工图
某中式长廊、景墙、围墙全套施工图 某中式长廊、景墙、围墙全套施工图 某中式长廊/景墙/围墙全套施工图,含两个中式景墙、一个中式围墙、一个中式长廊(木结构),景墙和围墙图纸含平面、立面、剖面及大样图,长廊图纸含平面图、顶面图、立面图、剖面图、坐凳详图以及详图等。
某中式长廊、景墙、围墙全套施工图