
15m至20.9m高钢筋混凝土挡墙设计图纸

15m至20.9m高钢筋混凝土挡墙设计图纸

15m至20.9m高钢筋混凝土挡墙设计图纸
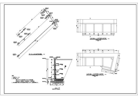
某工程挡土墙设计图纸,挡墙形式为扶壁式钢筋混凝土挡墙和毛石砌体挡墙。图纸内容包括:设计说明,段立面图,剖面示意图等。

15m至20.9m高钢筋混凝土挡墙设计图纸

15m至20.9m高钢筋混凝土挡墙设计图纸

15m至20.9m高钢筋混凝土挡墙设计图纸
某工程挡土墙设计图纸,挡墙形式为扶壁式钢筋混凝土挡墙和毛石砌体挡墙。图纸内容包括:设计说明,段立面图,剖面示意图等。
声明:资源收集自网络或用户分享,仅供学习参考,如侵犯您的权益,请联系我们处理。
不能下载?报告错误