当前位置:首页  资料内容详情

某公司钢结构厂房标准节点详图大全

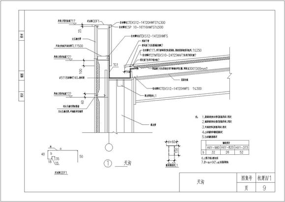
某公司钢结构厂房标准节点详图大全 某公司钢结构厂房标准节点详图大全 某公司钢结构厂房标准节点详图大全 该图纸为某公司钢结构厂房标准节点详图大全,图纸包括:设计说明,各节点构造详图。

某公司钢结构厂房标准节点详图大全

声明:本站为网络服务提供者及网络索引服务平台资源索引自网络/用户分享,如有版权问题,请联系站方删除。

不能下载?报告错误