当前位置:首页  资料内容详情

精美详细的过道(楼梯)玻璃栏杆施工图

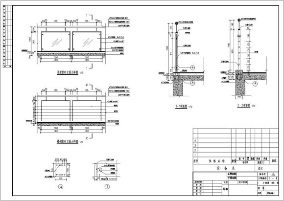
精美详细的过道(楼梯)玻璃栏杆施工图 本图纸是一份十分详细的过道玻璃栏杆施工图。图纸内容包括:过道栏杆立面大样图,楼梯栏杆立面大样图,剖面图,预埋件大样图。

精美详细的过道(楼梯)玻璃栏杆施工图

声明:本站为网络服务提供者及网络索引服务平台资源索引自网络/用户分享,如有版权问题,请联系站方删除。

不能下载?报告错误