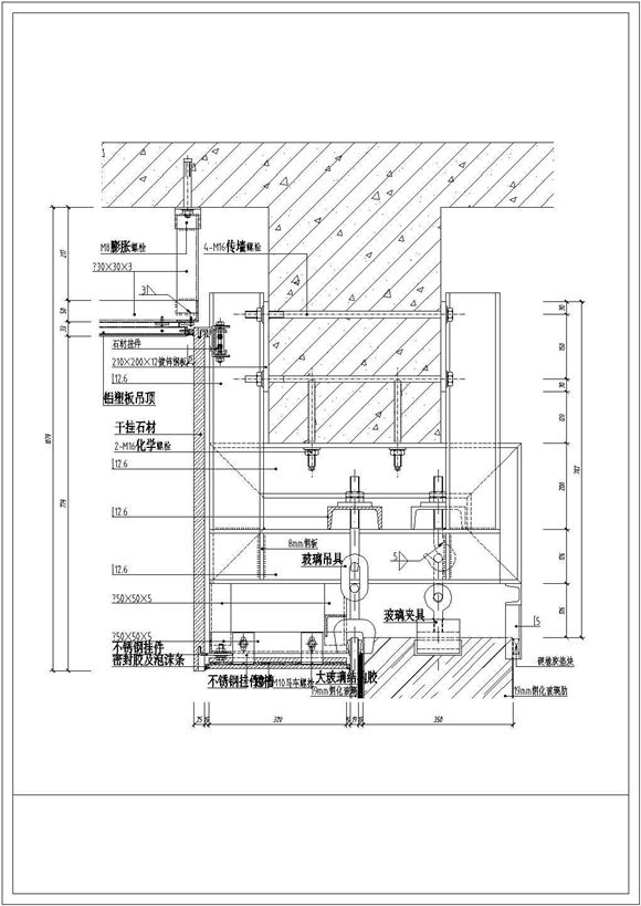
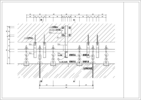
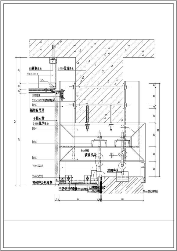
各种类型隐框玻璃幕墙节点构造详图 各种类型隐框玻璃幕墙节点构造详图 各种类型隐框玻璃幕墙节点构造详图 该图纸为各种类型隐框玻璃幕墙节点构造详图,内容包含隐框玻璃幕墙节点,泡沫条及密封胶、铝合金附框、铝合金附框、绝缘隔离层、通槽、橡胶垫块等。
各种类型隐框玻璃幕墙节点构造详图
各种类型隐框玻璃幕墙节点构造详图 各种类型隐框玻璃幕墙节点构造详图 各种类型隐框玻璃幕墙节点构造详图 该图纸为各种类型隐框玻璃幕墙节点构造详图,内容包含隐框玻璃幕墙节点,泡沫条及密封胶、铝合金附框、铝合金附框、绝缘隔离层、通槽、橡胶垫块等。
各种类型隐框玻璃幕墙节点构造详图