当前位置:首页  资料内容详情

二氧化氯发生器加药设备间及管路图纸

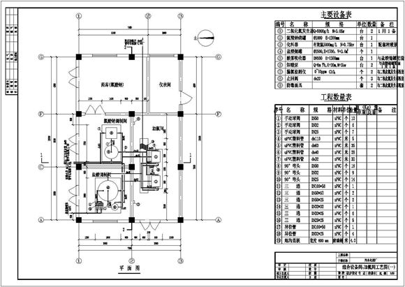
二氧化氯发生器加药设备间及管路图纸 二氧化氯发生器加药设备间及管路图纸 本图纸为:二氧化氯加药工艺图纸,包含加药设备间及其加药线路、配套设备参数说明、设备材料工程量清单以及配套说明。值得参考。

二氧化氯发生器加药设备间及管路图纸

声明:本站为网络服务提供者及网络索引服务平台资源索引自网络/用户分享,如有版权问题,请联系站方删除。

不能下载?报告错误