
典型汉庭酒店消防工程单项设计施工图

典型汉庭酒店消防工程单项设计施工图

典型汉庭酒店消防工程单项设计施工图
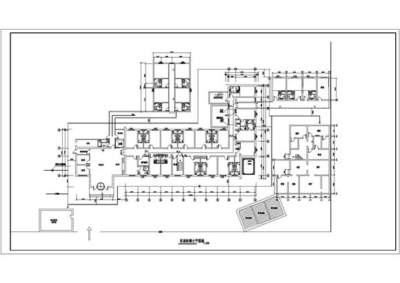
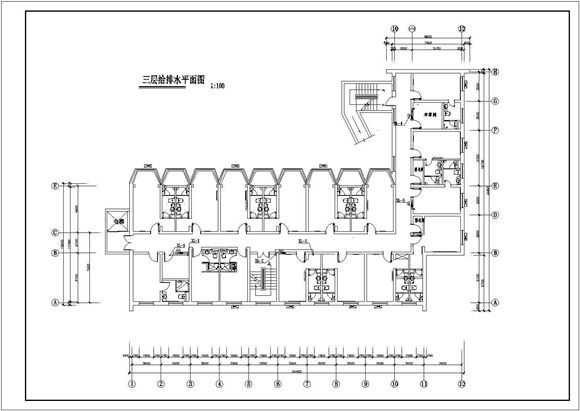
本图为酒店消防单项设计图,包括室内外消防及消防稳压装置、消防增压水泵,消防系统图、消防管线布置图等。

典型汉庭酒店消防工程单项设计施工图

典型汉庭酒店消防工程单项设计施工图

典型汉庭酒店消防工程单项设计施工图
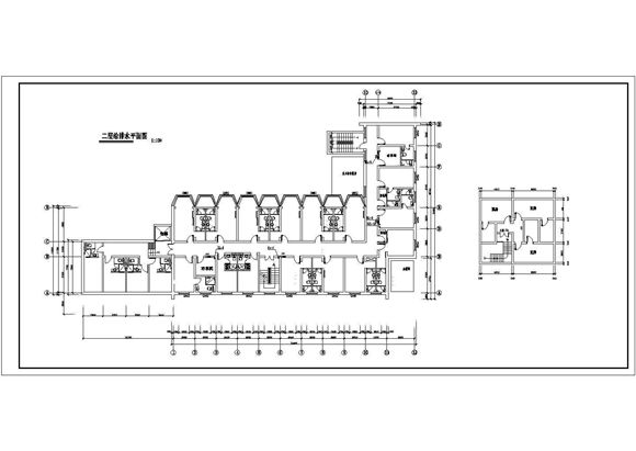
本图为酒店消防单项设计图,包括室内外消防及消防稳压装置、消防增压水泵,消防系统图、消防管线布置图等。
声明:资源收集自网络或用户分享,仅供学习参考,如侵犯您的权益,请联系我们处理。
不能下载?报告错误