
KYN61-40.5高压中置柜一次系统图、二次原理图

KYN61-40.5高压中置柜一次系统图、二次原理图

KYN61-40.5高压中置柜一次系统图、二次原理图
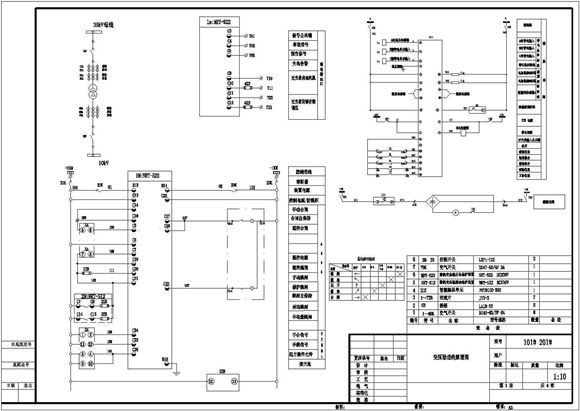
KYN61-40.5高压中置柜一次系统图、二次原理图。为双路35kV进线,每段母线设进线柜、PT柜、出线柜。单母线分段接线,设母联柜及隔离柜。有进线、出线、PT、母联柜及隔离柜5种方案,每方案含二次原

KYN61-40.5高压中置柜一次系统图、二次原理图

KYN61-40.5高压中置柜一次系统图、二次原理图

KYN61-40.5高压中置柜一次系统图、二次原理图
KYN61-40.5高压中置柜一次系统图、二次原理图。为双路35kV进线,每段母线设进线柜、PT柜、出线柜。单母线分段接线,设母联柜及隔离柜。有进线、出线、PT、母联柜及隔离柜5种方案,每方案含二次原
声明:资源收集自网络或用户分享,仅供学习参考,如侵犯您的权益,请联系我们处理。
不能下载?报告错误