
某三层食堂厨房通风系统设计施工图(六张)

某三层食堂厨房通风系统设计施工图(六张)

某三层食堂厨房通风系统设计施工图(六张)
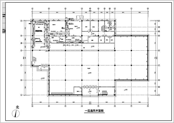
本工程为学生食堂,共三层;主要在厨房及其功能房间设计机械送、排风装置(包括除油烟)。图纸包括设计说明、详尽设备表、平面图、大样图。

某三层食堂厨房通风系统设计施工图(六张)

某三层食堂厨房通风系统设计施工图(六张)

某三层食堂厨房通风系统设计施工图(六张)
本工程为学生食堂,共三层;主要在厨房及其功能房间设计机械送、排风装置(包括除油烟)。图纸包括设计说明、详尽设备表、平面图、大样图。
声明:资源收集自网络或用户分享,仅供学习参考,如侵犯您的权益,请联系我们处理。
不能下载?报告错误