一、工程概况
案例工程为高层住宅小区项目,并设有地下车库及配套用房等辅助设施,基础形式多为桩筏基础、筏板基础,并涉及独立基础、柱下条形基础;地下车库底板、顶板、砼墙设置有后浇带。筏板选用C35混凝土,抗渗等级P6。顶板、墙、柱选用C35混凝土,抗渗等级P6。后浇带留设宽度800mm,选用高于两侧一个等级的掺膨胀剂无收缩混凝土浇筑。
二、对后浇带的留设要求
1、对后浇带的要求
1.1后浇带是为在现浇钢筋混凝土结构施工过程中,克服由于温度、收缩而可能产生有害裂缝而设置的临时施工缝。该缝需根据设计要求保留一段时间后再浇筑,将整个结构连成整体。
1.2在后浇带构造中,除图中注明者外,后浇带钢筋应该按贯通留筋。
1.3后浇带的设置距离,应考虑在有效降低温差和收缩应力的条件下,通过计算来获得。在正常的施工条件下,参照《混凝土结构工程施工质量验收规范》的相关规定施工。
1.4沉降后浇带在主体封顶后,根据沉降记录,由设计单位确认后方可封闭;收缩后浇带应该在两侧混凝土龄期达到45d后方可封闭。
1.5后浇带的宽度应考虑施工简便,避免应力集中。一般其宽度为70~100cm。根据本工程设计要求,后浇带宽度800mm。后浇带内的钢筋应完好保存。
1.6地下室后浇带必须采取覆盖保护措施,凡因留置后浇带而形成较大悬臂的部位应加支撑,待后浇带砼浇筑后强度达到100%时才能拆除。
1.7后浇带填筑前必须全面进行清理干净。如地下室积水,应抽排干净并清除干净该处余泥渣物,用水冲洗干净后,方能浇筑砼。
2、后浇带的留设
2.1后浇带部位的模板支承体系应以其两侧轴线为界,自成一独立体系,同时又要确保与整体支承系统共同受力,即当相邻结构施工时,后浇带部位的支承架参与整体支承系统共同受力,但当相邻结构模板及支承架拆除后,后浇带部位的支承架及模板独立工作的性能不变,后浇带两侧混凝土结构与模板间应不产生间隙,后浇带混凝土浇筑后接缝平顺。
2.2后浇带部位的模板支承体系必须在后浇带部位的砼达到设计要求的100%后,方可拆除,板部位的后浇带模板支撑时,两侧考虑采用钢板网,其安装方法按常规操作。
2.3地下室后浇带施工中,底板、外墙后浇带防水是两个值得注意的问题。为防止地下水产生突涌,采用对底板后浇带处混凝土垫层施工进行加厚、提高混凝土强度等级,局部配筋等措施(见下图)图中①处附加筋为B16@200。

2.4基础底板后浇带支护,如下图所示

2.5由于施工中支模加固、混凝土浇捣等影响,极易造成护墙及防水层的破坏。为使外墙后浇带施工缝处具有较好的防水性能,施工缝可做成凹凸形,并附加止水钢板(见下图)

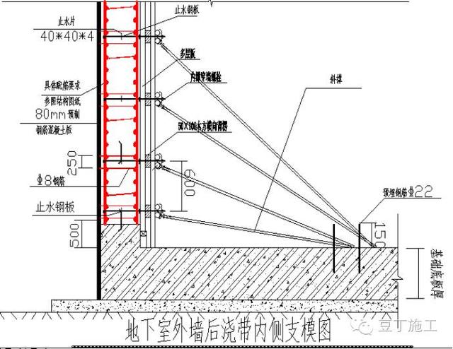
2.6地下室外墙后浇带内侧支模具体做法如下图所示:

2.7板面后浇带
(1)板后浇带的底模与支撑系统与两侧现浇板模板分离。后浇带混凝土浇筑前,后浇带位置的顶板模板与支撑系统不得拆除。模板支设方式见下图示意:

2.8后浇带两侧垂直施工缝采用钢丝网模板,钢管(钢筋)加固,并在竖向施工缝两侧处设置木条。以保证新旧混凝土衔接光滑平整。
为预防采用一次性单层钢板网而造成混凝土及混凝土浆流入后浇带,不易清理。施工中采用以下做法:梁板底筋用与砼同成份水泥砂预制(条)块(形如阴栏坝)来搁置底筋,避免混凝土从底筋下涌入后浇带。对于墙和较深的梁(600mm),则采用双层网作一次性模板,双层网中一层为钢板网,一层则为细网眼铁丝网,两层网片可事先绑扎固定在一起。双层网用定型钢筋支撑,定型钢筋与底筋、面筋焊接固定。具体做法如下图所示:

2.9混凝土浇筑28天后,下方模板与支撑方可拆除。为了避免工人误拆后浇带支撑架,架子与模板用黄黑相间颜色标记。
2.10板后浇带混凝土选用微膨胀混凝土。后浇带应一次浇筑,不宜设置施工缝。
2.11顶板后浇带混凝土浇筑后应及时养护,养护时间不少于14天。要拆除后浇带位置模板时,要对后浇带两侧现浇梁板结构做好回顶。
3、施工缝的处理
3.1防止垃圾等杂物落入后浇带内的措施:施工缝处理并清理干净后,应在后浇带两侧的板面上砌筑二皮砖墙,外侧用砖砌体做成防水坎,然后在后浇带的上面辅封盖多层板,每边超出砖墙20cm。避免以后施工过程中污染钢筋及建筑垃圾掉入后浇带内。
3.2梁头部位:在拆模后绑扎钢筋之前,施工队放线人员将梁头位置在墙上弹出边线,接着施工队派专人用砂轮切割机配合使用錾子将梁头位置精确凿出,要求凿除多余的混凝土,混凝土表面的水泥膜、浮浆、松动石子等,并清除干净。
3.3后浇带在浇灌前,应将钢筋除锈,调直理顺,将接缝处的砼凿毛,清除松石子和杂物,清洗干净,保持湿润,并刷纯水泥浆一道。
3.4后浇带在浇筑砼时,振棒落振点先振两侧,后振中间,多点轻振,捣实。后浇带捣实后即抹平,清除余浆。
三、后浇带的保护措施
1、底板后浇带的临时保护措施
1.1后浇带空置期间,为防止杂物、污水进入,可采取以下封闭措施:在底板后浇带上侧砌筑120mm宽、200mm高的砖带,上部用胶合板或编织布全封闭。
2、混凝土墙后浇带的保护措施
2.1墙体后浇带内侧的保护:墙体后浇带采用胶合板加以全封闭,以防止杂物落入。
2.2顶板(楼面)后浇带的保护措施:后浇带封闭前,后浇带位置的顶板模板不得拆除。个别需拆除的,需在28天后,并及时用钢管回顶。
四、浇筑前的施工准备
1、材料准备
1.1浇筑后浇带砼前应提前和商品砼厂家联系,特别注意配合比的砼强度等级和微膨胀剂的掺入。
2、机具准备
2.1后浇带位于基础和墙体及梁的部位上采用振捣棒振捣,位于现浇板部位采用平板振捣器振捣。
3、技术准备
3.1在施工前应该注意砼配合比的情况,做好操作人员的交底工作,单独做好钢筋隐检的工作,注意留置试块。
4、作业条件
4.1满足设计施工图规定的时间,并在沉降观测得到设计部门认可后、监理验收合格后方可进行浇筑。
五、后浇带施工工艺流程及施工方法
1、后浇带施工工艺流程
拆除、清理后浇带杂物钢筋除锈、整形、绑扎或补焊模板支设监理验收浇筑砼
2、后浇带施工方法
2.1 拆除、清理后浇带杂物:
(1)在现场施工时,为了追求后浇带留置位置的准确和观感,在后浇带二侧为钢丝网和木方,现在施工时要将木方全部拆除,将多余的钢丝网剔除。
(2)梁板后浇带内的流浆和多出的砼需凿除干净并凿直,将原有的砼垃圾全部清理干净方可进入下道工序。
2.2钢筋除锈和调直:
(1)钢筋除锈包括将所有钢筋全部除锈,基础内的钢筋用长把钢丝刷进行除锈;
(2)除锈后用水将后浇带内的钢筋锈冲洗干净;
(3)除锈后要将钢筋弯曲的进行调直,梁板内的受力钢筋需按设计要求进行搭接和补焊,需增补的钢筋要进行增补;
(4)经监理单位验收合格后,基础除锈冲洗后要立即进行浇筑,楼层后浇带在砼浇筑前进行冲洗,防止钢筋二次锈蚀。
2.3 模板的支设:
(1)地下室底板后浇带清理完成后可直接浇筑砼,不需装模。
(2)梁板及外墙等部位的后浇带需先装模板才能浇捣。
(3)模板的支设同原设计梁(墙)板尺寸,下部支撑必须顶紧,地下室外墙加固用对拉止水螺杆。
(4)楼层后浇带的模板从下到上分层进行,中间不能间断。
2.4 后浇带混凝土浇筑:
(1)混凝土浇筑前要将后浇带内杂物清理干净,用水冲洗后刷纯水泥浆一道。
(2)混凝土比设计高一个强度等级的微膨胀混凝土浇筑,振捣密实
(3)后浇带在浇筑砼时,振棒落振点先振两侧,后振中间,多点轻振,捣实。后浇带捣实后即抹平,清除余浆。
(4)为保证后浇带混凝土在规定的龄期内达到设计要求的强度,控制混凝土早期产生收缩裂缝,必须做好养护工作,并在混凝土浇筑完毕后12h进行,养护时间应不小于14d,水平梁板采用覆盖麻袋浇水养护,以保证砼体处于湿润状态。
(5)在浇筑砼时,专人专职巡检缝底支模,是否有松动,暴裂、变形等现象。如有即停止浇筑,对支模进行抢修后再浇筑。
六、后浇带施工应注意问题
后浇带要严格按施工规范和设计要求进行施工,施工中应高度重视下列问题:
1、后浇带先浇混凝土完成后应进行防护,局部应覆盖,四周用临时栏杆围护,防止施工过程中污染钢筋,保证钢筋不被踩踏。坚决避免后浇带不设围护,踩弯钢筋、钢筋杂乱、建筑垃圾较多,不易清理的现象。
2、后浇带浇筑混凝土前必须将整个截面按照施工缝的要求进行处理,清除杂物、水泥薄膜、表面松动的砂石和软弱混凝土层,并将两侧混凝土凿毛,用水冲洗干净,充分保持两侧混凝土湿润,一般不少于24小时。在表面涂刷水泥净浆或混凝土界面处理剂后,及时浇筑混凝土。若两侧混凝土不凿毛就浇注,容易使新老混凝土的粘结强度难以保证,处理不好就会在后浇带两侧造成两条贯空裂缝,极易渗水。
3、后浇带混凝土浇筑时,混凝土等级比原先混凝土提高一个等级,并在混凝土中掺加防裂抗渗剂,使用微膨胀水泥,可使其产生微膨胀压力以抵消混凝土的干缩,温差等产生的拉应力,使混凝土结构不出现裂缝,提高抗渗能力。
4、后浇带后浇混凝土一定要精心振捣密实,注意浇水养护。避免因后浇混凝土用量较少,在后浇带旁人工拌制混凝土,随拌随浇,严重影响了工程质量现象地发生。
5、后浇带部位的梁,板内钢筋不得切断,该部位梁板内的加强钢筋应严格按设计图纸设置。
6、后浇带跨内的梁、板在后浇带混凝土浇注前,两侧结构长期处于悬臂受力状态,施工期间,本跨内的模板和支撑不能拆除,必须待后浇混凝土强度达到设计强度值的75%以上后,方可按由上向下顺序拆除。杜绝提前拆除后浇带跨内的模板和支撑,造成板边开裂,使结构承载能力下降。
7、在混凝土浇筑和振捣过程中,应特别注意振捣器距离模板的距离,防止混凝土振捣中水泥浆严重流失,一般振捣器距离模板控制在40~50cm之间,为了保证混凝土的密实性,在钢丝网片及模板处,较深的垂直施工缝处应补用钢钎人工捣实。
8、因后浇带砼应采用提高一个强度等级、早强、补偿收缩的混凝土。施工前单独申请混凝土配合比,施工中提前做好水泥、砂、石和外加剂及掺合料的进场检验和试验工作,及时申请混凝土配合比。浇筑时认真计量,在混凝土浇筑时按规定留置标养试件和同条件养护试件,用以检验和证明后浇带混凝土的强度。混凝土浇筑后应重视其养护工作以提高混凝土的密实度和抗渗性。
七、后浇带质量保证措施
1、专人管理
为了使后浇带施工达到一次性合格的质量目标,所有后浇带的清理、钢筋除锈、调直、模板的支设、砼浇筑等将派专人管理,并一直跟踪至养护结束。
2、后浇带混凝土的养护措施
为保证后浇带混凝土在规定的龄期内达到设计要求的强度,控制混凝土早期产生收缩裂缝,必须做好养护工作,并在混凝土浇筑完毕后12h进行,养护时间应不小于14d,水平梁板采用覆盖麻袋浇水养护,以保证砼体处于湿润状态。
八、后浇带安全与文明施工注意事项
1、作业人员必须严格遵守劳动保护规定,正确佩带和使用个人防护用品。
2、作业人员必须严格执行安全技术交底和班长班前讲话要求。
3、交叉施工时,要有可靠的防护措施,不得伤害他人,也避免被他人伤害。
4、任何作业人员不得擅自拆动施工现场的脚手架、防护设施、安全标志和警告牌,如必须拆动时须经施工负责人允许方可。
5、作业人员不得随意抛洒施工垃圾和排放污水等人为造成的环境污染。
6、作业人员除必须执行作业时间限制外,在作业过程中应该自觉减少和消除嘈音。
7、作业人员要坚持文明施工,个人行为要适应CI形象管理要求。
8、拆除楼顶模板时应该一边拆支撑一边拆模板,禁止一次性拆完支撑。未浇筑的楼层后浇带顶面应覆盖严密,防止物体从后浇带中坠落伤人。