当前位置:首页  资料内容详情

某900*900*1500mm15米灯杆基础结构施工图

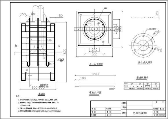
某900*900*1500mm15米灯杆基础结构施工图 某900*900*1500mm15米灯杆基础结构施工图,只有一张图纸,有说明,基础图,剖面图,螺栓大样图,法兰盘大样图,基础配筋图。

某900*900*1500mm15米灯杆基础结构施工图

声明:本站为网络服务提供者及网络索引服务平台资源索引自网络/用户分享,如有版权问题,请联系站方删除。

不能下载?报告错误