规范网
更新
当前位置:
规范网
资料
内容详情
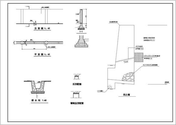
景观围墙挡土墙排水沟做法
景观围墙挡土墙排水沟做法
围墙挡土墙排水沟的各种做法,非常详细,欢迎大家下载
加入收藏
下载文件
声明:资源收集自网络或用户分享,仅供学习参考,如侵犯您的权益,请联系我们处理。
不能下载?报告错误
下页:
某别墅景观带绿化景观设计平面图总图
相关推荐
皖2016J601图集 围墙 大门 花格图集(完整版)
高清 闽2017-J-42图集 福建省ECP装配式围墙
公园城市绿色景观围墙营建指南 (DB5101/T 192-2024)
某物流场区道路 桥梁 堆场 大门 围墙工程施工组织设计
施工围墙施工方案
景观围墙挡土墙排水沟做法
下载文件
免费下载
标签
食品标准
天津市标准
检讨书
物资管理规范
单位通知
海关规范
城市道路
密封圈标准
测绘规范
地震规范
不锈钢标准
垫圈标准
焊接标准
螺母标准
垫片标准
插头标准
银行总结
企业工作计划
校车标准
会议标准
电气设备标准
航空规范
线材标准
电动车标准
甘肃省标准
城市轨道
止回阀标准
机械规范