
钢结构电梯井道CAD

钢结构电梯井道CAD

钢结构电梯井道CAD
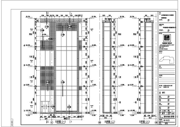
本工程为钢结构电梯井道CAD,包含钢结构电梯井道结构图,外围护幕墙结构,钢结构井道施工图等,图纸内容完整,表达清晰,制图严谨,欢迎设计师下载使用。

钢结构电梯井道CAD

钢结构电梯井道CAD

钢结构电梯井道CAD
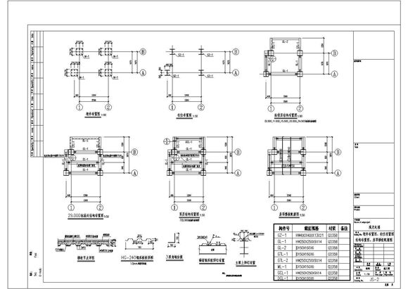
本工程为钢结构电梯井道CAD,包含钢结构电梯井道结构图,外围护幕墙结构,钢结构井道施工图等,图纸内容完整,表达清晰,制图严谨,欢迎设计师下载使用。
声明:资源收集自网络或用户分享,仅供学习参考,如侵犯您的权益,请联系我们处理。
不能下载?报告错误