
某品牌整体厨房橱柜展厅店面装饰装修图

某品牌整体厨房橱柜展厅店面装饰装修图

某品牌整体厨房橱柜展厅店面装饰装修图
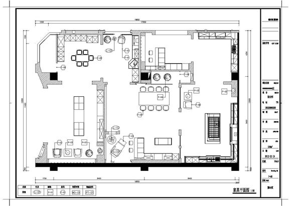
某品牌整体厨房橱柜展厅店面设计店面地址位于成都知名商场包括全套施工图:平面地面天花强弱电所有立面图详图

某品牌整体厨房橱柜展厅店面装饰装修图

某品牌整体厨房橱柜展厅店面装饰装修图

某品牌整体厨房橱柜展厅店面装饰装修图
某品牌整体厨房橱柜展厅店面设计店面地址位于成都知名商场包括全套施工图:平面地面天花强弱电所有立面图详图
声明:资源收集自网络或用户分享,仅供学习参考,如侵犯您的权益,请联系我们处理。
不能下载?报告错误