当前位置:首页  资料内容详情

某剧场旋转楼梯结构设计详图

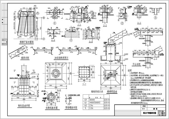
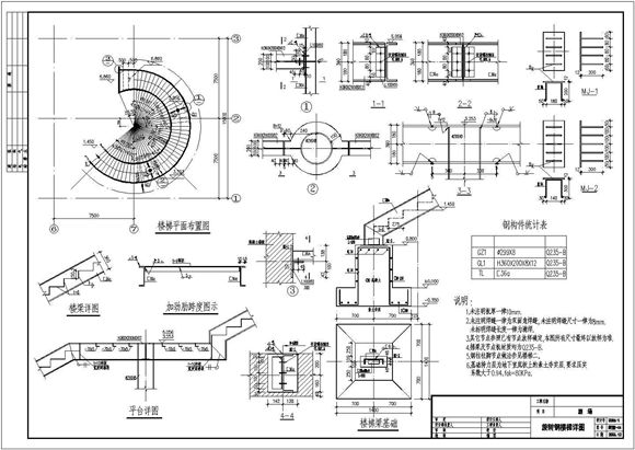
某剧场旋转楼梯结构设计详图 某剧场旋转楼梯结构设计详图 本工程为某剧场旋转楼梯结构设计详图,包含旋转钢楼梯详图、观众厅钢楼梯详图、大样图等,图纸内容完整,表达清晰,制图严谨,欢迎设计师下载使用。

某剧场旋转楼梯结构设计详图

声明:本站为网络服务提供者及网络索引服务平台资源索引自网络/用户分享,如有版权问题,请联系站方删除。

不能下载?报告错误