规范网
更新
当前位置:
规范网
资料
内容详情
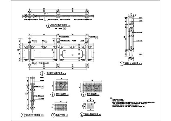
滨河、桥梁景观青石栏杆标准段施工图纸
滨河、桥梁景观青石栏杆标准段施工图纸
本图青石整打栏杆施工安装详图,可以运用与其他石材栏杆的安装做参考资料。
加入收藏
下载文件
声明:资源收集自网络或用户分享,仅供学习参考,如侵犯您的权益,请联系我们处理。
不能下载?报告错误
下页:
某农桥桥台、桥墩、台帽构造设计图
相关推荐
园林建筑装饰工程施工管理规范 (T/HBCERI 020-2024)
古典园林建筑设计戴秋思 2014年版
园林建筑设计 中国房产信息集团 克而瑞(中国)信息技术有限公司组织编写 2012年
园林建筑设计与施工 周初梅
园林建筑设计 杜汝俭 李恩山 刘管平 1986年版
滨河、桥梁景观青石栏杆标准段施工图纸
下载文件
免费下载
标签
02j331
认证认可规范
锻件标准
检验标准
圆钢标准
银行工作计划
吉林省标准
酒店工作计划
海关规范
电气安全标准
指导性国家标准
螺钉标准
党员总结
邮政规范
机关单位工作计划
河南省标准
中心孔标准
船舶规范
山东省标准
离职申请
路桥
司法规范
cad制图标准
思想汇报
个人工作计划
实习报告
烟草规范
江西省标准