
常用屋面构造节点图合集(CAD版)

常用屋面构造节点图合集(CAD版)

常用屋面构造节点图合集(CAD版)
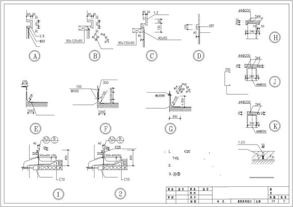
图纸内容包括:常用屋面构造节点CAD图合集,隔热屋面,卷材屋面建筑构造,内排水暗管,女儿墙泛水及压顶板,女儿墙及泛水,平屋面排水构件组合,平屋面挑,平屋面挑(檐)无保温层,平屋面挑(檐)现浇口檐,平屋

常用屋面构造节点图合集(CAD版)

常用屋面构造节点图合集(CAD版)

常用屋面构造节点图合集(CAD版)
图纸内容包括:常用屋面构造节点CAD图合集,隔热屋面,卷材屋面建筑构造,内排水暗管,女儿墙泛水及压顶板,女儿墙及泛水,平屋面排水构件组合,平屋面挑,平屋面挑(檐)无保温层,平屋面挑(檐)现浇口檐,平屋
声明:资源收集自网络或用户分享,仅供学习参考,如侵犯您的权益,请联系我们处理。
不能下载?报告错误