当前位置:首页  资料内容详情

某项目工程氨法脱硫工艺cad图纸

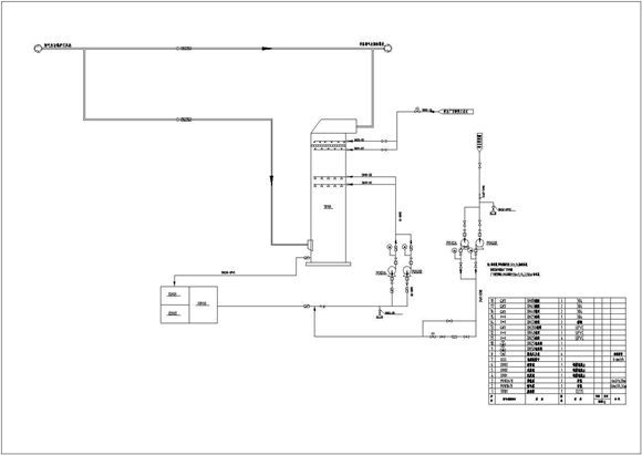
某项目工程氨法脱硫工艺cad图纸 本图为某项目某工程脱硫工艺图,脱硫效率为85%,使用脱硫剂为氨水,用量按年运行8000小时

某项目工程氨法脱硫工艺cad图纸

声明:本站为网络服务提供者及网络索引服务平台资源索引自网络/用户分享,如有版权问题,请联系站方删除。

不能下载?报告错误