
混凝土重力坝设计图纸(含计算书及说明)

混凝土重力坝设计图纸(含计算书及说明)

混凝土重力坝设计图纸(含计算书及说明)
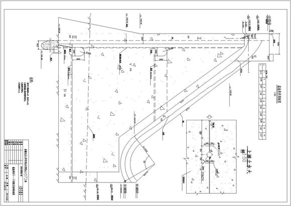
混凝土重力坝设计图含计算书及说明,大坝平面布置图、坝轴线纵剖面图、混凝土分区图等。

混凝土重力坝设计图纸(含计算书及说明)

混凝土重力坝设计图纸(含计算书及说明)

混凝土重力坝设计图纸(含计算书及说明)
混凝土重力坝设计图含计算书及说明,大坝平面布置图、坝轴线纵剖面图、混凝土分区图等。
声明:资源收集自网络或用户分享,仅供学习参考,如侵犯您的权益,请联系我们处理。
不能下载?报告错误