当前位置:首页  资料内容详情

【桁架】24米三角形屋架钢屋架结构详图

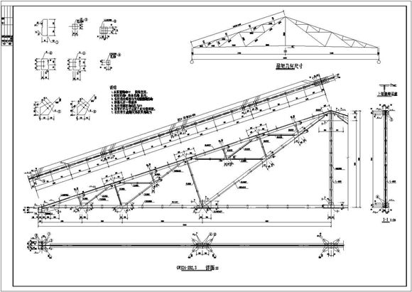
【桁架】24米三角形屋架钢屋架结构详图 【桁架】24米三角形屋架钢屋架结构详图 钢屋架厂房结构施工图包括了屋架几何尺寸、钢屋架施工图、垂直支撑详图、下弦水平支撑详图、下弦水平支撑详图等图。

【桁架】24米三角形屋架钢屋架结构详图

声明:本站为网络服务提供者及网络索引服务平台资源索引自网络/用户分享,如有版权问题,请联系站方删除。

不能下载?报告错误