
【节点】常用钢结构节点通用大样图,共12张

【节点】常用钢结构节点通用大样图,共12张

【节点】常用钢结构节点通用大样图,共12张
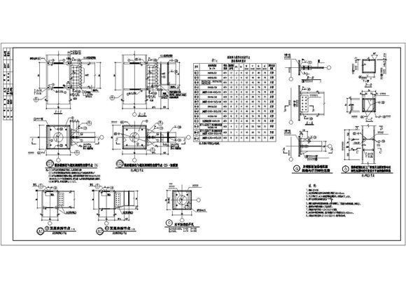
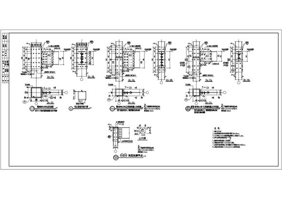
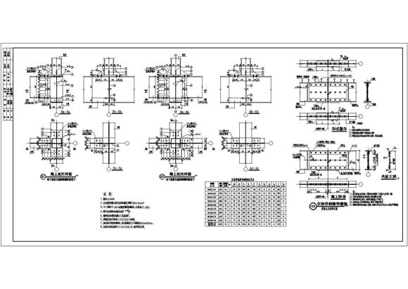
常用钢结构节点通用大样图包括了箱形截面柱与框架梁刚性连接节点、顶层连接节点、梁上起柱详图等图。

【节点】常用钢结构节点通用大样图,共12张

【节点】常用钢结构节点通用大样图,共12张

【节点】常用钢结构节点通用大样图,共12张
常用钢结构节点通用大样图包括了箱形截面柱与框架梁刚性连接节点、顶层连接节点、梁上起柱详图等图。
声明:资源收集自网络或用户分享,仅供学习参考,如侵犯您的权益,请联系我们处理。
不能下载?报告错误