
二层农村自建别墅户型结构图(带地下室)

二层农村自建别墅户型结构图(带地下室)

二层农村自建别墅户型结构图(带地下室)
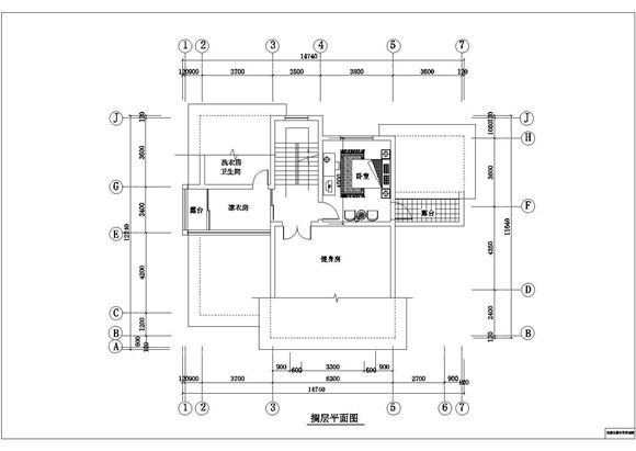
本图为某农村二层半别墅户型结构图,一共四套别墅,占地面积从146平到230平不等,包含地下室。共55张图纸,内容包括:地下室平面图、一层平面图、二层平面图、阁楼平面图、各立面图、剖面图、楼梯详图等。

二层农村自建别墅户型结构图(带地下室)

二层农村自建别墅户型结构图(带地下室)

二层农村自建别墅户型结构图(带地下室)
本图为某农村二层半别墅户型结构图,一共四套别墅,占地面积从146平到230平不等,包含地下室。共55张图纸,内容包括:地下室平面图、一层平面图、二层平面图、阁楼平面图、各立面图、剖面图、楼梯详图等。
声明:资源收集自网络或用户分享,仅供学习参考,如侵犯您的权益,请联系我们处理。
不能下载?报告错误