
某人民医院平面图(各层平面齐全)

某人民医院平面图(各层平面齐全)

某人民医院平面图(各层平面齐全)
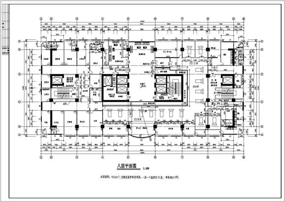
某人民医院平面图,用于方案阶段,施工图阶段、借鉴都可以,因用地较小,所以做成高层,医技、住院、办公、门诊、急诊放到一栋高层内。

某人民医院平面图(各层平面齐全)

某人民医院平面图(各层平面齐全)

某人民医院平面图(各层平面齐全)
某人民医院平面图,用于方案阶段,施工图阶段、借鉴都可以,因用地较小,所以做成高层,医技、住院、办公、门诊、急诊放到一栋高层内。
声明:资源收集自网络或用户分享,仅供学习参考,如侵犯您的权益,请联系我们处理。
不能下载?报告错误