
双立柱LED显示屏钢结构架子施工图纸

双立柱LED显示屏钢结构架子施工图纸

双立柱LED显示屏钢结构架子施工图纸
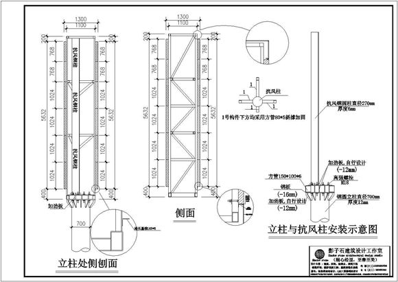
双立柱LED显示屏钢结构架子施工图纸,箱体分布图纸,显示屏3D示意图,钢架子制作工艺图纸,基础图、材料表,各个3D节点图

双立柱LED显示屏钢结构架子施工图纸

双立柱LED显示屏钢结构架子施工图纸

双立柱LED显示屏钢结构架子施工图纸
双立柱LED显示屏钢结构架子施工图纸,箱体分布图纸,显示屏3D示意图,钢架子制作工艺图纸,基础图、材料表,各个3D节点图
声明:资源收集自网络或用户分享,仅供学习参考,如侵犯您的权益,请联系我们处理。
不能下载?报告错误