
某地区的钢结构旋转楼梯布置图

某地区的钢结构旋转楼梯布置图

某地区的钢结构旋转楼梯布置图
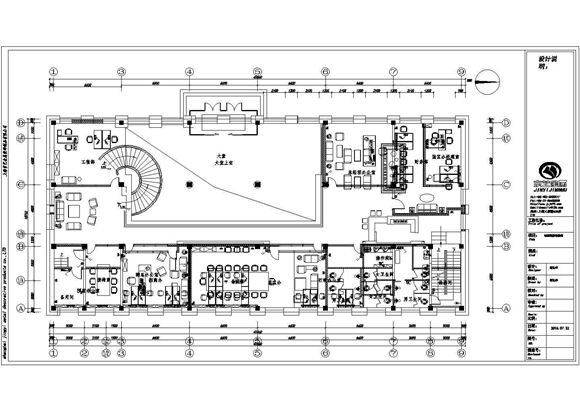
本工程为某地区的钢结构旋转楼梯布置图,包含楼梯一层平面详图、楼梯侧立剖面图、楼梯外弧展开详图,图纸内容完整,表达清晰,制图严谨,欢迎设计师下载使用

某地区的钢结构旋转楼梯布置图

某地区的钢结构旋转楼梯布置图

某地区的钢结构旋转楼梯布置图
本工程为某地区的钢结构旋转楼梯布置图,包含楼梯一层平面详图、楼梯侧立剖面图、楼梯外弧展开详图,图纸内容完整,表达清晰,制图严谨,欢迎设计师下载使用
声明:资源收集自网络或用户分享,仅供学习参考,如侵犯您的权益,请联系我们处理。
不能下载?报告错误