
某3层现代城市小别墅设计图(共8张)

某3层现代城市小别墅设计图(共8张)

某3层现代城市小别墅设计图(共8张)
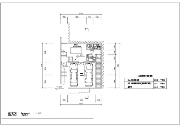
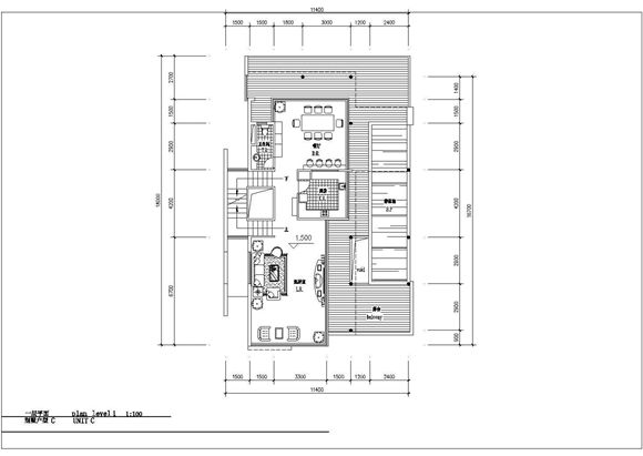
某3层现代城市小别墅设计图。该图纸共有8张,其中包括地下室平面、二层平面图等图。内容详细,可供参考。

某3层现代城市小别墅设计图(共8张)

某3层现代城市小别墅设计图(共8张)

某3层现代城市小别墅设计图(共8张)
某3层现代城市小别墅设计图。该图纸共有8张,其中包括地下室平面、二层平面图等图。内容详细,可供参考。
声明:资源收集自网络或用户分享,仅供学习参考,如侵犯您的权益,请联系我们处理。
不能下载?报告错误