

天沟做法构造与节点CAD示意图

天沟做法构造与节点CAD示意图

天沟做法构造与节点CAD示意图
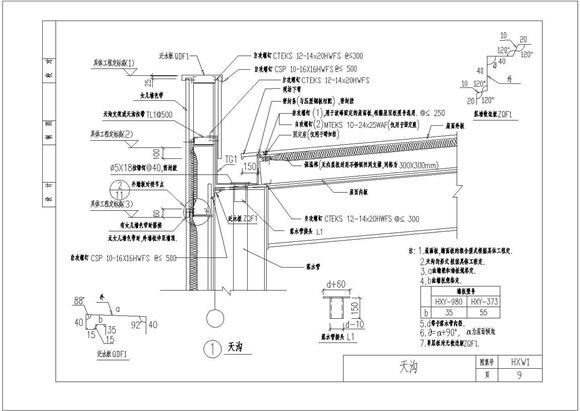
本工程为天沟做法构造与节点CAD示意图,包含泛水管图、落水管接头图、天沟等详图等,图纸内容完整,表达清晰,制图严谨,欢迎设计师下载使用


天沟做法构造与节点CAD示意图

天沟做法构造与节点CAD示意图

天沟做法构造与节点CAD示意图
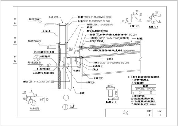
本工程为天沟做法构造与节点CAD示意图,包含泛水管图、落水管接头图、天沟等详图等,图纸内容完整,表达清晰,制图严谨,欢迎设计师下载使用
声明:资源收集自网络或用户分享,仅供学习参考,如侵犯您的权益,请联系我们处理。
不能下载?报告错误