

生物除臭装置(生物滴滤塔)设计图

生物除臭装置(生物滴滤塔)设计图

生物除臭装置(生物滴滤塔)设计图
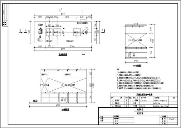
图纸包括设备俯视图、剖面图、设备底座平面布置图、填料支架平面布置图、顶板支架平面布置图、+1.2m加强槽钢平面布置图、A-A剖面图、填料支架平面布置图、滤网安装大样图等,可供参考。


生物除臭装置(生物滴滤塔)设计图

生物除臭装置(生物滴滤塔)设计图

生物除臭装置(生物滴滤塔)设计图
图纸包括设备俯视图、剖面图、设备底座平面布置图、填料支架平面布置图、顶板支架平面布置图、+1.2m加强槽钢平面布置图、A-A剖面图、填料支架平面布置图、滤网安装大样图等,可供参考。
声明:资源收集自网络或用户分享,仅供学习参考,如侵犯您的权益,请联系我们处理。
不能下载?报告错误