当前位置:首页  资料内容详情

处理生物除臭塔的设计图纸

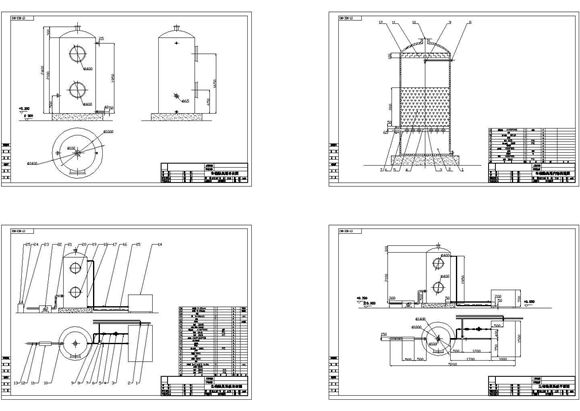
处理生物除臭塔的设计图纸 生物除臭塔设计图纸,图纸清晰、内容实在,是生物除臭塔设计可以参考的比较好的案例图纸,供大家参考

处理生物除臭塔的设计图纸

声明:本站为网络服务提供者及网络索引服务平台资源索引自网络/用户分享,如有版权问题,请联系站方删除。

不能下载?报告错误