

某中学教学楼设计方案图(共9张)

某中学教学楼设计方案图(共9张)

某中学教学楼设计方案图(共9张)
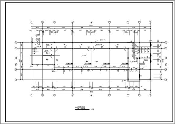
本图纸为某中学教学楼设计方案图(共9张),内容包括:一层平面图、二层平面图、三层平面图、四层平面图、立面图、剖面图等内容,可供参考。


某中学教学楼设计方案图(共9张)

某中学教学楼设计方案图(共9张)

某中学教学楼设计方案图(共9张)
本图纸为某中学教学楼设计方案图(共9张),内容包括:一层平面图、二层平面图、三层平面图、四层平面图、立面图、剖面图等内容,可供参考。
声明:资源收集自网络或用户分享,仅供学习参考,如侵犯您的权益,请联系我们处理。
不能下载?报告错误