
15款天花顶棚图图库大全节点详图(全套)

15款天花顶棚图图库大全节点详图(全套)

15款天花顶棚图图库大全节点详图(全套)
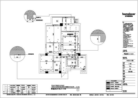
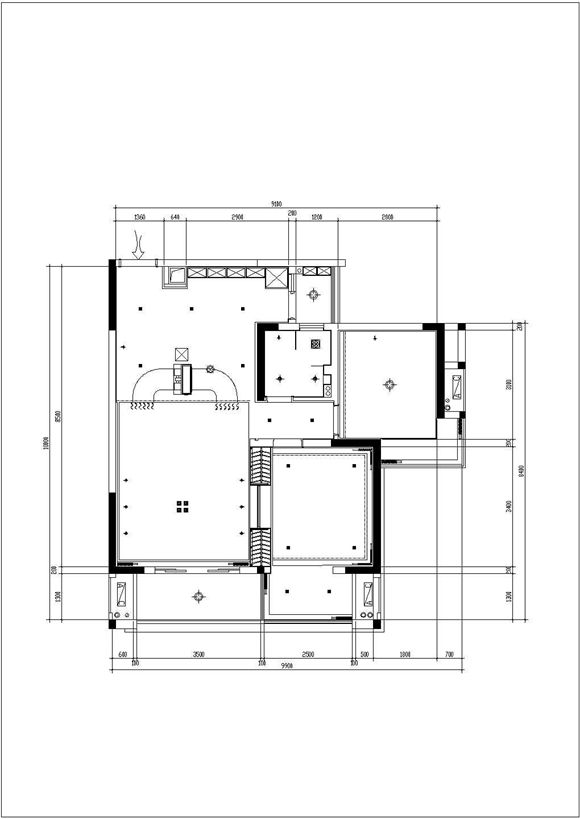
本图纸为:15款天花顶棚图图库大全节点详图(全套),其中包含:平面图、剖面图、大样图等,可供参考。

15款天花顶棚图图库大全节点详图(全套)

15款天花顶棚图图库大全节点详图(全套)

15款天花顶棚图图库大全节点详图(全套)
本图纸为:15款天花顶棚图图库大全节点详图(全套),其中包含:平面图、剖面图、大样图等,可供参考。
声明:资源收集自网络或用户分享,仅供学习参考,如侵犯您的权益,请联系我们处理。
不能下载?报告错误