当前位置:首页  资料内容详情

某混凝土搅拌站基础施工图(共6张)

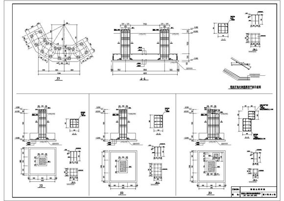
某混凝土搅拌站基础施工图(共6张) 某混凝土搅拌站基础施工图(共6张) 某混凝土搅拌站基础施工图(共6张) 本图纸为:某混凝土搅拌站基础施工图内容包括平面布置图,立面图等共6张,内容详细,可供参考。

某混凝土搅拌站基础施工图(共6张)

声明:本站为网络服务提供者及网络索引服务平台资源索引自网络/用户分享,如有版权问题,请联系站方删除。

不能下载?报告错误