
某学校食堂室内装修平面设计施工图(共16张)

某学校食堂室内装修平面设计施工图(共16张)

某学校食堂室内装修平面设计施工图(共16张)
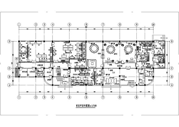
本图纸为:某学校食堂室内装修平面设计施工图,内容包括平面布置图等共16张,内容详细,可供参考。

某学校食堂室内装修平面设计施工图(共16张)

某学校食堂室内装修平面设计施工图(共16张)

某学校食堂室内装修平面设计施工图(共16张)
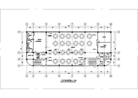
本图纸为:某学校食堂室内装修平面设计施工图,内容包括平面布置图等共16张,内容详细,可供参考。
声明:资源收集自网络或用户分享,仅供学习参考,如侵犯您的权益,请联系我们处理。
不能下载?报告错误