
职业学院体育场看台膜结构图纸(共17张图)

职业学院体育场看台膜结构图纸(共17张图)

职业学院体育场看台膜结构图纸(共17张图)
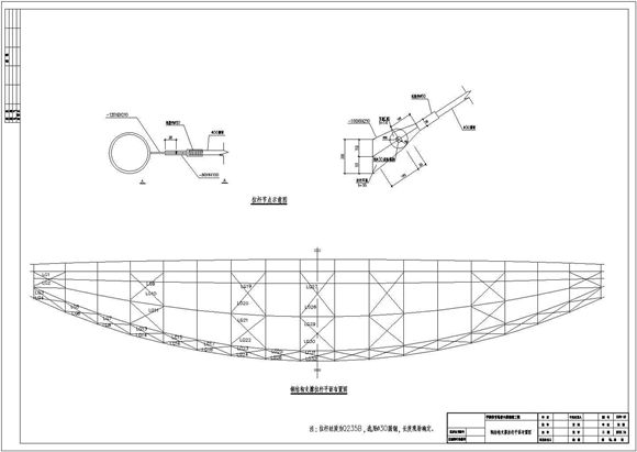
本工程是体育场上部膜结构和支撑膜结构的下部钢结构部分。抗震设防烈度为7度,图纸包括:钢结构设计施工总说明,预埋件布置图,钢架图,膜节点施工图,平立面图,平面布置图,剖面图,共计17张图。

职业学院体育场看台膜结构图纸(共17张图)

职业学院体育场看台膜结构图纸(共17张图)

职业学院体育场看台膜结构图纸(共17张图)
本工程是体育场上部膜结构和支撑膜结构的下部钢结构部分。抗震设防烈度为7度,图纸包括:钢结构设计施工总说明,预埋件布置图,钢架图,膜节点施工图,平立面图,平面布置图,剖面图,共计17张图。
声明:资源收集自网络或用户分享,仅供学习参考,如侵犯您的权益,请联系我们处理。
不能下载?报告错误