
大型高端美容院养生会所装修cad施工设计图

大型高端美容院养生会所装修cad施工设计图

大型高端美容院养生会所装修cad施工设计图
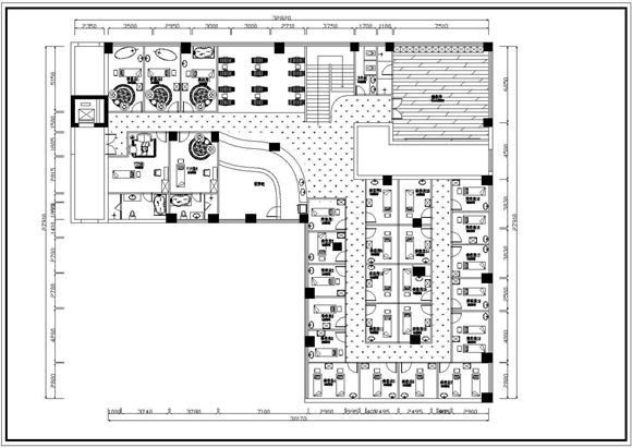
大型高端美容院养生会所cad施工设计图,图纸设计非常详细,包括各层平面布置图,众多施工细节图等,供大家下载参考。

大型高端美容院养生会所装修cad施工设计图

大型高端美容院养生会所装修cad施工设计图

大型高端美容院养生会所装修cad施工设计图
大型高端美容院养生会所cad施工设计图,图纸设计非常详细,包括各层平面布置图,众多施工细节图等,供大家下载参考。
声明:资源收集自网络或用户分享,仅供学习参考,如侵犯您的权益,请联系我们处理。
不能下载?报告错误