
某发达城市公共建筑电气施工方案图

某发达城市公共建筑电气施工方案图

某发达城市公共建筑电气施工方案图
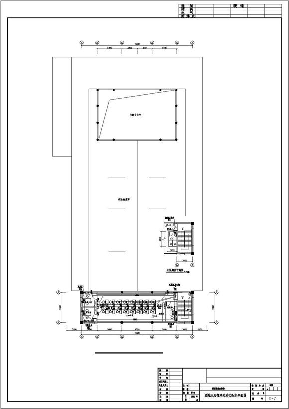
本图纸为:某发达城市公共建筑电气施工方案图,内容包括:配电系统图、照明平面图、建筑电气图例表及标注说明等,可供参考。

某发达城市公共建筑电气施工方案图

某发达城市公共建筑电气施工方案图

某发达城市公共建筑电气施工方案图
本图纸为:某发达城市公共建筑电气施工方案图,内容包括:配电系统图、照明平面图、建筑电气图例表及标注说明等,可供参考。
声明:资源收集自网络或用户分享,仅供学习参考,如侵犯您的权益,请联系我们处理。
不能下载?报告错误