
小公寓户型图设计cad大全(含效果图)

小公寓户型图设计cad大全(含效果图)

小公寓户型图设计cad大全(含效果图)
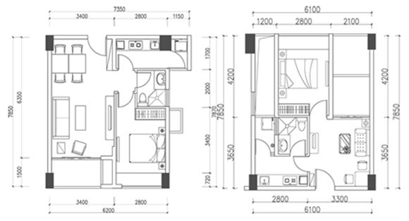
2016最新的种类齐全的小公寓户型图设计cad大全_小户型cad设计大全(标注齐全),可供参考。2016最新的种类齐全的小公寓户型图设计cad大全_小户型cad设计大全(标注齐全)_户型图大全_户型图

小公寓户型图设计cad大全(含效果图)

小公寓户型图设计cad大全(含效果图)

小公寓户型图设计cad大全(含效果图)
2016最新的种类齐全的小公寓户型图设计cad大全_小户型cad设计大全(标注齐全),可供参考。2016最新的种类齐全的小公寓户型图设计cad大全_小户型cad设计大全(标注齐全)_户型图大全_户型图
声明:资源收集自网络或用户分享,仅供学习参考,如侵犯您的权益,请联系我们处理。
不能下载?报告错误