当前位置:首页  资料内容详情

经典精美排屋装修设计图纸(全套)

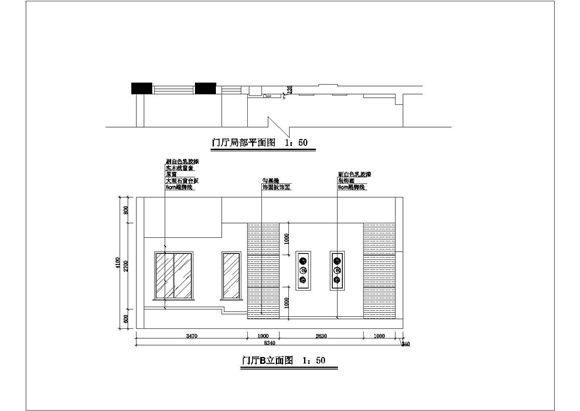
经典精美排屋装修设计图纸(全套) 经典精美排屋装修设计图纸(全套) 经典精美排屋装修设计图纸(全套) 本图纸为:经典精美排屋装修设计图纸(全套),其中包含:平面图、立面图、剖面图等,可供参考。

经典精美排屋装修设计图纸(全套)

声明:本站为网络服务提供者及网络索引服务平台资源索引自网络/用户分享,如有版权问题,请联系站方删除。

不能下载?报告错误