
咖啡厅设计方案CAD图纸(含平立剖面图)

咖啡厅设计方案CAD图纸(含平立剖面图)

咖啡厅设计方案CAD图纸(含平立剖面图)
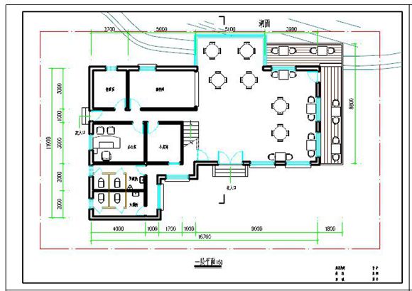
一套咖啡厅的设计方案CAD图纸,还有平面布置图,立面图,现代风格,可供参考下载。

咖啡厅设计方案CAD图纸(含平立剖面图)

咖啡厅设计方案CAD图纸(含平立剖面图)

咖啡厅设计方案CAD图纸(含平立剖面图)
一套咖啡厅的设计方案CAD图纸,还有平面布置图,立面图,现代风格,可供参考下载。
声明:资源收集自网络或用户分享,仅供学习参考,如侵犯您的权益,请联系我们处理。
不能下载?报告错误