
经典日式二层别墅详细建筑设计图(全套)

经典日式二层别墅详细建筑设计图(全套)

经典日式二层别墅详细建筑设计图(全套)
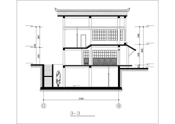
建筑占地面积:18.6m*14.4m建筑层数:二层建筑高度:6.8米(不含屋顶)设计功能:一层:起居室、4间卫生间、书房、门厅、合室、2间卧室、厨房、餐厅;二层:2间客卧、主卧、3个阳台、2

经典日式二层别墅详细建筑设计图(全套)

经典日式二层别墅详细建筑设计图(全套)

经典日式二层别墅详细建筑设计图(全套)
建筑占地面积:18.6m*14.4m建筑层数:二层建筑高度:6.8米(不含屋顶)设计功能:一层:起居室、4间卫生间、书房、门厅、合室、2间卧室、厨房、餐厅;二层:2间客卧、主卧、3个阳台、2
声明:资源收集自网络或用户分享,仅供学习参考,如侵犯您的权益,请联系我们处理。
不能下载?报告错误