规范网
更新
当前位置:
规范网
资料
内容详情
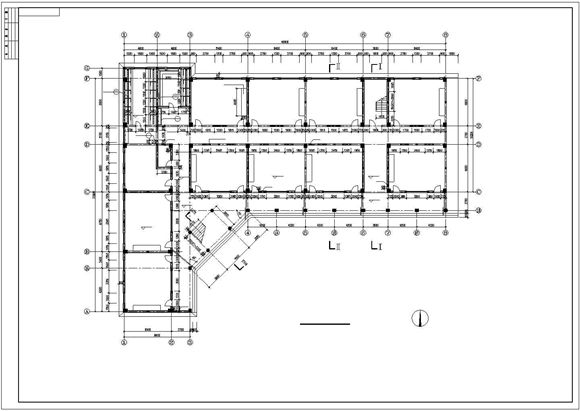
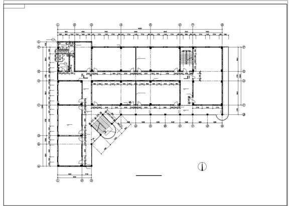
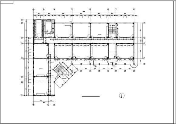
某学校教学楼全套设计图纸(共9张)
某学校教学楼全套设计图纸(共9张)
某学校教学楼全套设计图纸(共9张)
某学校教学楼全套设计图纸(共9张)
本图纸为教学楼全套设计图,其内容包括教学楼平面图,规划图等图纸,可供参考。
加入收藏
下载文件
声明:资源收集自网络或用户分享,仅供学习参考,如侵犯您的权益,请联系我们处理。
不能下载?报告错误
下页:
比较齐全的建筑平面图(标注详细)
相关推荐
高等职业教育建筑工程技术专业精品系列教材 工程测量 姚锡伟,许翊 2015年版
建筑实录 Vol.4 面向学习的教育建筑 (2011版)
供热工程 高等职业技术教育建筑设备类专业规划教材
建筑快速设计 教育建筑
教育建筑电气设计规范 (JGJ 310-2013)
某学校教学楼全套设计图纸(共9张)
下载文件
免费下载
标签
球墨铸铁管标准
煤炭规范
卫生规范
牛奶标准
单位通知
止回阀标准
行政总结
数据标准
05j909
船舶规范
工作通知
链轮标准
城市轨道
交通运输规范
学校工作计划
动平衡标准
环境保护规范
教师发言稿
园林
最新更新
机械制图标准
电力规范
02j331
12j201
通知模板
税务规范
11zj901
无缝管标准