规范网
更新
当前位置:
规范网
资料
内容详情
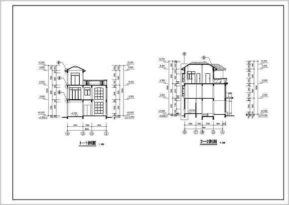
经典别墅建筑结构施工图纸(共17张)
经典别墅建筑结构施工图纸(共17张)
经典别墅建筑结构施工图纸(共17张)
经典别墅建筑结构施工图纸(共17张)
本图纸为别墅建筑结构施工图,其内容包括立面图和剖面图等图纸,顾客参考。
加入收藏
下载文件
声明:资源收集自网络或用户分享,仅供学习参考,如侵犯您的权益,请联系我们处理。
不能下载?报告错误
下页:
民用住宅平面图的完整CAD住宅图纸
相关推荐
苏J50-2024图集 居住建筑标准化外窗系统设计图集(OCR版)
装配式混凝土居住建筑首个标准层段联合验收规程 (T/BIAS 11-2025)
严寒和寒冷地区居住建筑节能设计标准 (DB65/T8022-2024)
《居住建筑节能设计标准》 配套图集 PT -891图集
23J908-8 被动式超低能耗建筑-严寒和寒冷地区居住建筑(替代16J908-8图集)
经典别墅建筑结构施工图纸(共17张)
下载文件
免费下载
标签
税务规范
农业规范
机械规范
北京市标准
不锈钢标准
管螺纹标准
蝶阀标准
放假通知
学校领导讲话稿
技术总结
农业标准
钢结构标准
电气设备标准
应急管理规范
核工业规范
止回阀标准
文物保护规范
工作通知
阻燃标准
硬度标准
管道标准
内蒙古自治区标准
客服总结
单位通知
四川省标准
山西省标准
安全标准
财务总结