规范网
更新
当前位置:
规范网
资料
内容详情
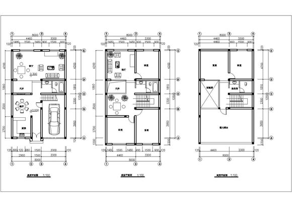
民用住宅平面图的完整CAD住宅图纸
民用住宅平面图的完整CAD住宅图纸
民用住宅平面图的完整CAD住宅图纸
民用住宅平面图的完整CAD住宅图纸
民用住宅平面图其中包含立面图;剖面图;平面图等。内容详实,可供参考
加入收藏
下载文件
声明:资源收集自网络或用户分享,仅供学习参考,如侵犯您的权益,请联系我们处理。
不能下载?报告错误
下页:
某英式别墅石材建筑设计图(共12张)
相关推荐
住宅小区安全防范系统运维服务规范 (DB34/T 4977-2025)
住宅小区微型消防站建设管理规范 (DB3207/T 2039-2025)
住宅小区保安服务规范 (DB3402/T 76-2024)
住宅小区电动汽车充电设施建设管理规范 (DB4403/T 525-2024)
津17D20图集 住宅小区安全防范系统
民用住宅平面图的完整CAD住宅图纸
下载文件
免费下载
标签
垫圈标准
校车标准
人事总结
插头标准
纪检总结
钢结构标准
不锈钢标准
社会实践报告
公共安全规范
国内贸易规范
学校领导讲话稿
城市轨道
邮政规范
劳动和劳动安全规范
企业工作计划
探伤标准
行政总结
机关单位工作计划
指导性国家标准
17J927-1
弱电
粉煤灰标准
布线标准
金融规范
单位总结
结构
角钢标准
河南省标准