
十六层办公楼综合布线系统图(全套)

十六层办公楼综合布线系统图(全套)

十六层办公楼综合布线系统图(全套)
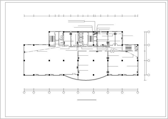
本图纸为十六层办公楼综合布线系统图(全套),其包含的内容有:综合布线系统图,综合布线平面图等,其内容详实,可供设计们参考与分析。

十六层办公楼综合布线系统图(全套)

十六层办公楼综合布线系统图(全套)

十六层办公楼综合布线系统图(全套)
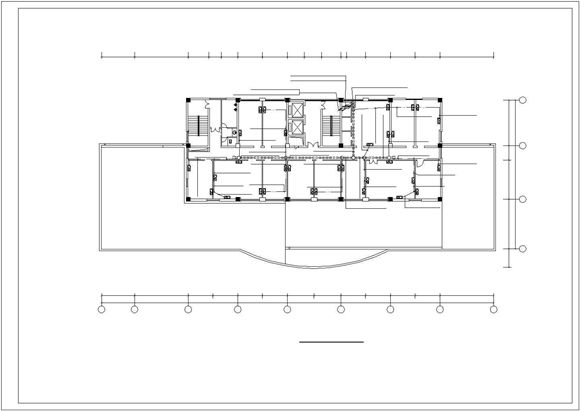
本图纸为十六层办公楼综合布线系统图(全套),其包含的内容有:综合布线系统图,综合布线平面图等,其内容详实,可供设计们参考与分析。
声明:资源收集自网络或用户分享,仅供学习参考,如侵犯您的权益,请联系我们处理。
不能下载?报告错误